Umnutzung bestehendes Bauernhaus zu kleinem Mehrfamilienhaus
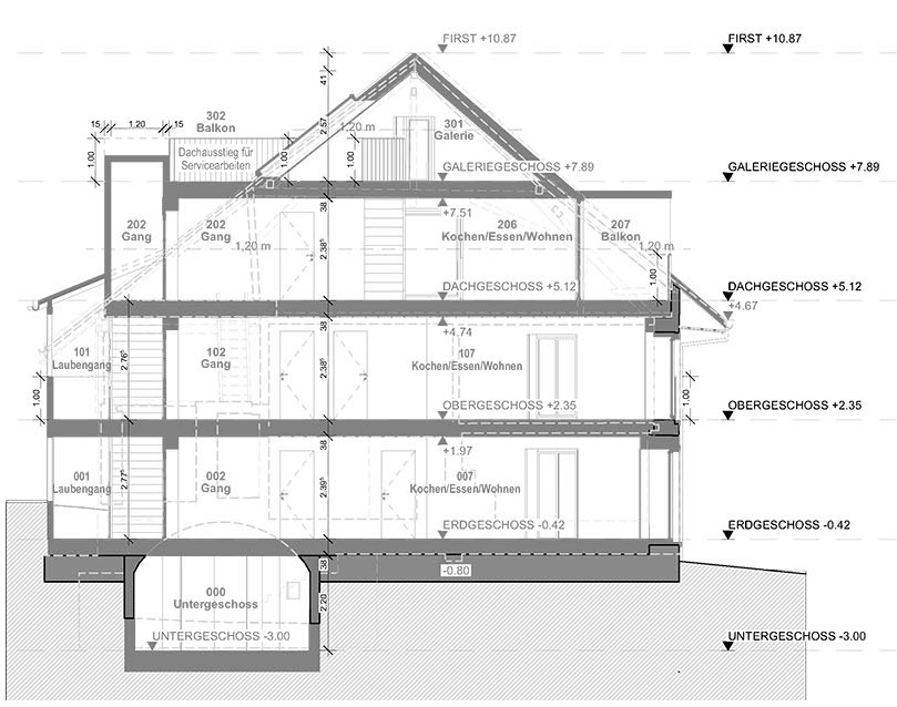
Neuer Laubengang aus Holz für Vertikalerschliessungen der 3 Geschosswohnungen
Ein älteres Bauernhaus in der Dorfzone von Birmenstorf, das unter Volumenschutz steht, sollte zu einem 3-Familienhaus umgenutzt werden. Die ursprüngliche Planung sah den Einbau eines Personenlifts für barrierefreien Zugang zu den Geschosswohnungen und Untergeschossräumen vor. Aufgrund der begrenzten Platzverhältnisse wurde eine Lösung mit Laubengang und Treppenaufgang ohne Lift realisiert.
Aufgabenstellung der Bauherrschaft
Die Aufgabe bestand darin, das historische Bauernhaus barrierefrei und funktional in ein Familienhaus umzunutzen, während der klare Bezug zur historisch gewachsenen Architektursprache erhalten bleibt. Ziel war eine Lösung, die sowohl die Bewahrung des Dorfbilds als auch die Anforderungen an modernen Wohnkomfort berücksichtigt.
Herausforderungen bei der Planung
Die Sanierung unter Volumenschutz und Dorfbildschutz erforderte besondere Aufmerksamkeit. Die Integration der neuen Nutzung in den historischen Dorfkern musste den Vorgaben der Gemeinde und der Fachkommission für Dorfbildschutz entsprechen. Durch enge Abstimmung konnte eine harmonische Lösung gefunden werden, die sowohl den Anforderungen der Bauherrschaft als auch dem Denkmalschutz gerecht wird.
Denkmalschutzgerechte und nachhaltige Sanierung
Besonderer Wert wurde auf denkmalschutzgerechte Sanierung und erhaltende Maßnahmen im historischen Dorfkern gelegt. Das Gebäude wurde so umgebaut, dass die historische Substanz erhalten bleibt, während moderne Wohnbedürfnisse umgesetzt werden. Naturnahe und nachhaltige Materialien sowie eine klare Gliederung der Fassaden sorgen für eine zeitgemässe Interpretation der bestehenden Architektur.
Barrierefreies Familienhaus im historischen Dorfkern
Die Umnutzung des Bauernhauses zu einem barrierefreien Familienhaus ermöglicht komfortables Wohnen in allen drei Geschossen. Der Zugang erfolgt über den Laubengang und die Treppe, sodass die Barrierefreiheit und Funktionalität sichergestellt sind. Die Lösung respektiert die historischen Vorgaben, integriert moderne Wohnbedürfnisse und fügt sich harmonisch in den Dorfkern von Birmenstorf ein.





